Mathildenhöhe | Darmstadt
Verfahren: Nichtoffener Realisierungswettbewerb mit Ideenteil
Jahr: 02 / 2026
Größe: 7000 m2
Auslober: Wissenschaftsstadt Darmstadt
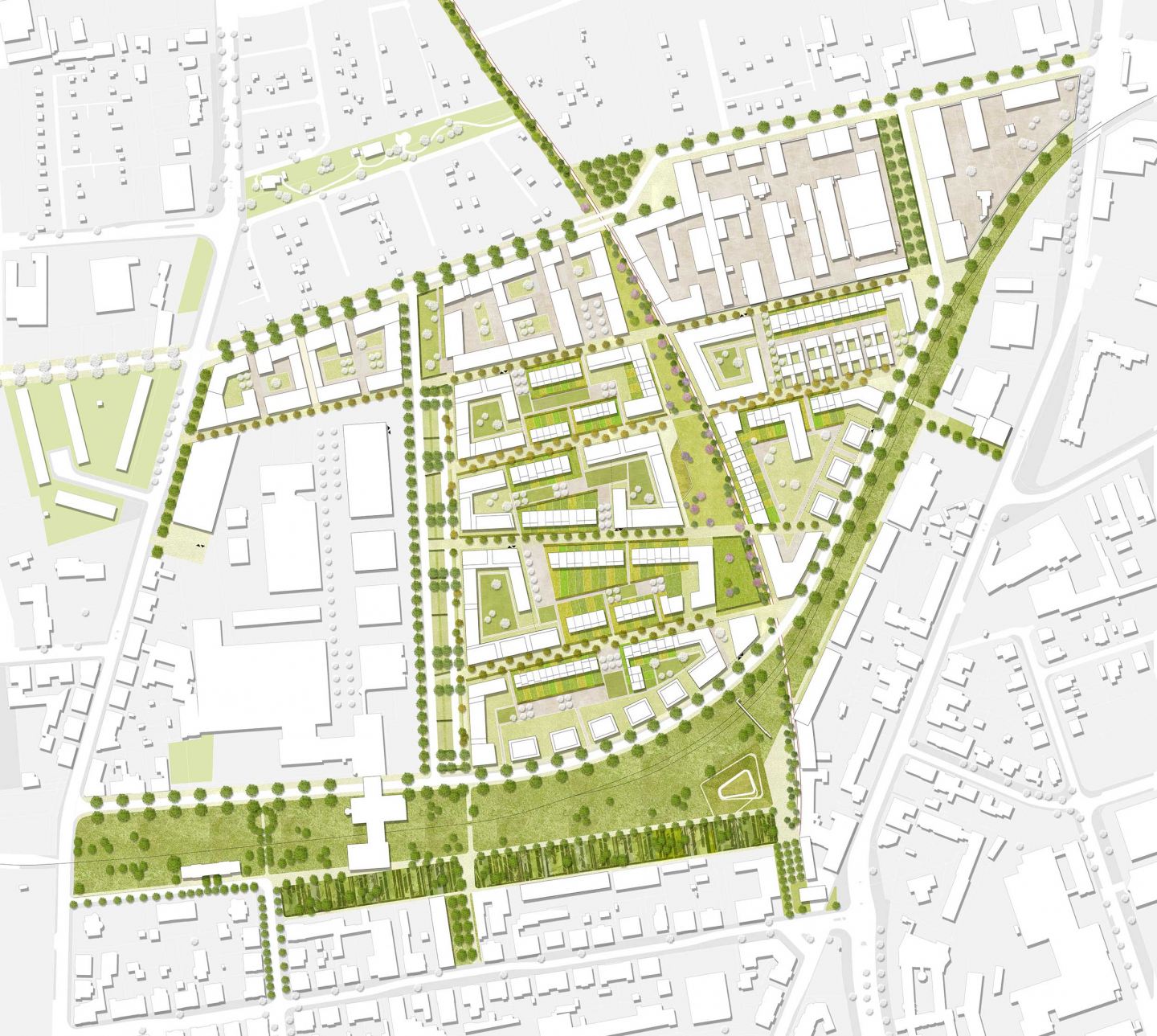
Stadtquartier Elisabeth-Aue | Berlin-Pankow
Verfahren: Nichtoffener Wettbewerb
Kooperation: Ortner & Ortner Baukunst
Jahr: 06 / 2012
Größe: 73 ha
Auslober: Entwicklungsgesellschaft Elisabeth Aue GmbH, Berlin
Bauschlotter Anger | Neulingen
Verfahren: Nichtoffener Realisierungswettbewerb
Jahr: 10 / 2025
Größe: 1,4 ha, davon 980 qm Ideenteil
Auslober: Gemeinde Neulingen
Forumsplatz am Stadtmittelpunkt | Castrop-Rauxel
Verfahren: Freiraumplanerischer Realisierungswettbewerb
Jahr: 08 / 2024
Größe: 33 ha, davon 20 ha Kernbereich Neuplanung
Auslober: Stadt Castrop-Rauxel
Klimavorzeigestadtteil Rothneusiedl | Wien
Verfahren: 2-phasiger interdisziplinärer Dialog
Kooperation: O&O Baukunst; IG Sieker, Concular, Transsolar, Rosinak & Partner
Jahr: 03 / 2024
Größe: 124 ha, davon 25 ha öffentl. Grünfläche
Auslober: Stadt Wien
Hagenmarkt | Braunschweig
Verfahren: Nichtoffener freiraumplanerischer Realisierungswettbewerb
Jahr: 09 / 2022
Größe: 6.400m²
Auslober: Stadt Braunschweig
Neugestaltung der Erschließungsanlagen – Schleswig
Verfahren: Freiraumplaneririscher Realisierungswettbewerb
Kooperation: iplan nord gmbh
Jahr: 11 / 2020
Größe: 17,6 ha
Auslober: Stadt Schleswig
Neugestaltung der Holstenstraße | Kiel
Verfahren: Freiraumplanerischer Realisierungswettbewerb
Jahr: 11 / 2020
Größe: 3,4 ha
Auslober: Landeshauptstadt Kiel
Umgestaltung des Molkereiplatzes | Hamminkeln
Verfahren: Begrenzter Realisierungswettbewerb
Jahr: 09 / 2020
Größe: 8.300 m2
Auslober: Stadt Hamminkeln
Husemannplatz | Bochum
Verfahren: Nichtoffener freiraumplanerischer Realisierungswettbewerb
Jahr: 06 / 2020
Größe: 6.500 m²
Auslober: Stadt Bochum
Siemensstadt 2.0 | Berlin
Verfahren: Nichtoffener, interdisziplinärer, städtebaulicher Realisierungswettbewerb
Kooperation: Ortner & Ortner Baukunst
Jahr: 01 / 2020
Größe: 700.000 m2
Auslober: Siemensstadt Grundstücks-GmbH & Co. KG in Abstimmung mit Land Berlin
Neubau des Staatsarchiv | Kitzingen
Verfahren: Nichtoffener Wettbewerb
Kooperation: gmp Architekten von Gerkan, Marg und Partner
Jahr: 10 / 2019
Größe: 7.787 m2
Auslober: Staatliches Bauamt Würzburg
Alter Markt | Magdeburg
Verfahren: Nichtoffener freiraumplanerischer Realisierungswettbewerb
Jahr: 09 / 2019
Größe: 1,63 ha
Auslober: Landeshauptstadt Magdeburg
Neugestaltung St. Petri-Platz | Buxtehude
Verfahren: Wettbewerbliches Dialogverfahren
Jahr: 05 / 2019
Größe: 4.740 m2
Auslober: Hansestadt Buxtehude
Sanierung Marktplatz | Markt Schöllnach
Verfahren: Nichtoffener Realisierungswettbewerb
Jahr: 04 / 2019
Größe: 10.600 m2
Auslober: Markt Schöllnach
Oberndorf – Talplatz | Oberndorf a.N.
Verfahren: Nichtoffener Planungswettbewerb
Jahr: 11 / 2018
Größe: 1,15 ha
Auslober: Stadt Oberndorf a.N.
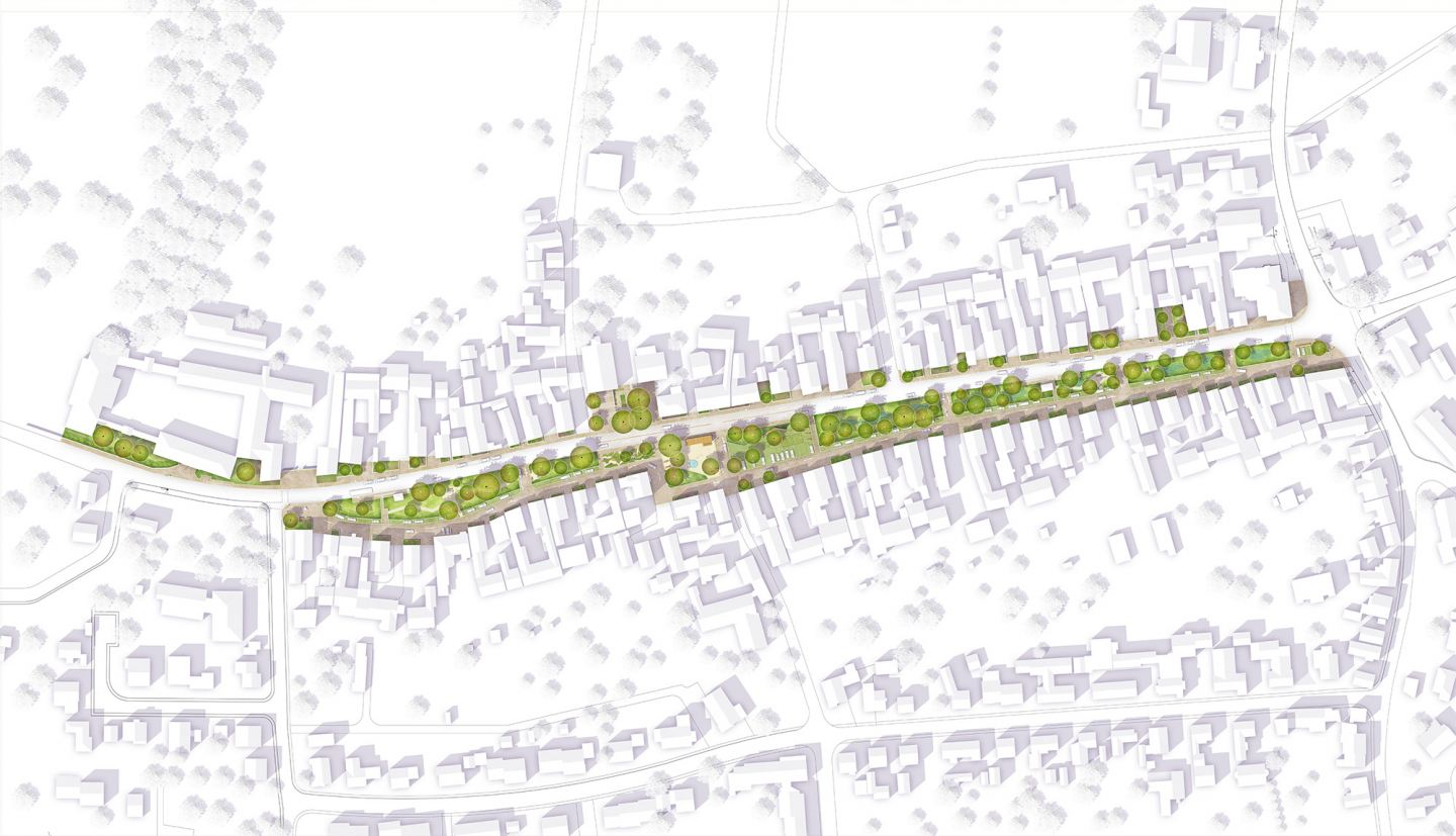
Neugestaltung der Haupteinkaufsstraße | Winsen (Luhe)
Verfahren: Anonymer landschaftsarchitektonischer Realisierungswettbewerb
Jahr: 09 / 2018
Größe: 1,8 ha
Auslober: Stadt Winsen (Luhe)
Neugestaltung des Domplatzes | Frankfurt
Verfahren: Nichtoffener Realisierungswettbewerb
Jahr: 08 / 2018
Größe: 9.000 m2
Auslober: DomRömer GmbH
Bahnhofsplatz Süd | Heidelberg
Verfahren: Offener Realisierungswettbewerb
Jahr: 05 / 2018
Größe: 11.000 m2
Auslober: Stadt Heidelberg
Landesgartenschau 2023 | Fulda
Verfahren: Offener städtebaulicher und landschaftsplanerischer Ideen- und Realisierungswettbewerb
Jahr: 05 / 2018
Auslober: Stadt Fulda
Neugestaltung Marktplatz Rheinau | Mannheim
Verfahren: Nichtoffener Wettbewerb mit moderierter Bürgerbeteiligung
Jahr: 07 / 2017
Größe: 4.500 m2
Auslober: Stadt Mannheim
Neubau des Besucher und Informationszentrums des Deutschen Bundestages | Berlin
Verfahren: Offener Ideen- und Realisierungswettbewerb
Kooperation: 2D+ Architekten / rw+ Architekten
Jahr: 11 / 2016
Größe: 880 m2
Auslober: Bundesrepublik Deutschland/ Bundesamt für Bauwesen und Raumordnung
Außenanlage Van-de-Velde-Bauten Bauhaus-Universität | Weimar
Verfahren: Offener Ideen- und Realisierungswettbewerb
Kooperation: studio dinnebier
Jahr: 09 / 2016
Größe: 5.500 m2
Auslober: Thüringer Ministerium für Infrastruktur und Landwirtschaft
Pfaffengrunder Terrasse | Heidelberg
Verfahren: Offener Ideen- und Realisierungswettbewerb
Jahr: 04 / 2016
Größe: 12.000 m2
Auslober: DSK mbH & Co. KG
Umgestaltung des Rathausplatzes Heidingsfeld | Würzburg
Verfahren: Einladungswettbewerb
Jahr: 02 / 2016
Größe: 1.270 m2
Auslober: Stadt Würzburg
Areal Bussebart, Stadthafen | Hansestadt Rostock
Verfahren: Städtebaulichen Ideenwettbewerb, zweiphasig
Kooperation: gmp Architekten von Gerkan, Marg und Partner
Jahr: 12 / 2014
Größe: 155.000 m2
Auslober: Rostocker Gesellschaft für Stadterneuerung, Stadtentwicklung und Wohnungsbau mbH
Altstadt | Hammelburg
Verfahren: Nichtoffener Wettbewerb
Jahr: 07 / 2014
Größe: 3.500 m2
Auslober: Stadt Hammelburg
6. Hessische Landesgartenschau | Bad Schwalbach
Verfahren: Offener Ideen- und Realisierungswettbewerb
Kooperation: 2D+ Architekten; EIBS Entwurfs- und Ingenieurbüro Straßenwesen
Jahr: 12 / 2013
Größe: 32.000 m2
Auslober: Bad Schwalbach
Taunusplatz | Mannheim
Verfahren: Nichtoffener Realisierungswettbewerb
Jahr: 12 / 2013
Größe: 7.600 m2
Auslober: Stadt Mannheim
Neubau eines Sport- und Freizeitbades | Potsdam
Verfahren: Nichtoffener Realisierungswettbewerb
Kooperation: gmp Architekten von Gerkan, Marg und Partner/Hartwich / Mertens / INGENIEURE Planungsgesellschaft/b.i.g. bechtold Ingenieurgesellschaft
Jahr: 07 / 2013
Größe: 18.000 m2
Auslober: Stadtwerke Potsdam
Nördliches Ringgebiet 1 | Braunschweig
Verfahren: Nichtoffener städtebaulicher Wettbewerb
Kooperation: Ackers Partner Städtebau
Jahr: 12 / 2013
Größe: 200.000 m2
Auslober: Stadt Braunschweig
Angoulêmeplatz | Hildesheim
Verfahren: Nichtoffener Wettbewerb
Jahr: 06 / 2012
Größe: 9.000 m2
Auslober: Stadt Hildesheim
Neugestaltung Kulturplatz | St. Gallen
Verfahren: Nichtoffener Realisierungswettbewerb
Kooperation: Gabriele G. Kiefer als Kiefer CS
Jahr: 01 / 2012
Größe: 180.500 m2
Auslober: Stadt St. Gallen, CH
Parklandschaft Gatow – Urbane Landwirtschaft | Berlin
Verfahren: Offener Wettbewerb
Kooperation: Gabriele G. Kiefer
Jahr: 05 / 2011
Größe: 90.000 m2
Auslober: Bundesamt für Bauwesen und Raumordnung
Parklandschaft Tempelhof, Tempelhof Parkland | Berlin
Verfahren: Finalist
Kooperation: Büro für Architektur und Städtebau - Martin Heberle & Christof Mayer/ raumlabor Berlin
Jahr: 06 / 2010
Größe: 320 ha
Auslober: Land Berlin/ Grün Berlin GmbH
Campus Berlin-Buch | Berlin
Verfahren: Nichtoffener Wettbewerb
Kooperation: Heide & von Beckerath
Jahr: 08 / 2010
Größe: 320.000 m2
Auslober: BBB Management GmbH Campus Berlin-Buch
Realisierungswettbewerb Marktplatz | Ellwangen
Verfahren: Nichtoffener Ideen- und Realisierungswettbewerb
Kooperation: 1:1 Architekten
Jahr: 05 / 2009
Größe: 54.700 m2
Auslober: Stadt Ellwangen
Hauptstraße und Plätze | Mellrichstadt
Verfahren: Nichtoffener Ideen- und Realisierungswettbewerb
Kooperation: eins:eins architekten Hillenkamp & Roselius
Jahr: 10 / 2008
Größe: 14.000 m2
Auslober: Stadt Mellrichstadt
Doberaner Platz | Rostock
Verfahren: Wettbewerb
Kooperation: studio dinnebier/ VIA Beratende Ingenieure/ Dr. Herold AG/ IBJM
Jahr: 2004
Größe: 17.500 m2
Auslober: Hansestadt Rostock/ RGS







































