![]()
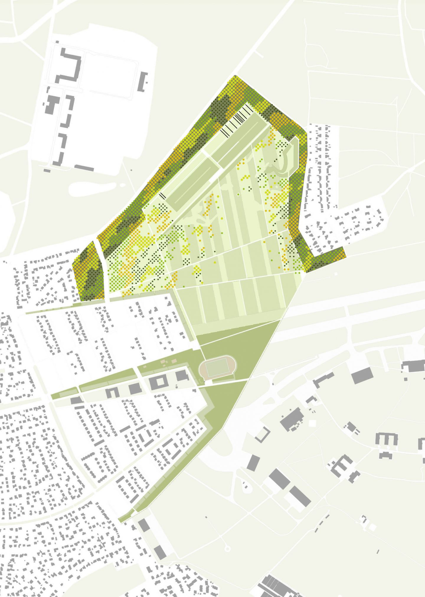
Parklandschaft Gatow – Urbane Landwirtschaft
Berlin
Verfahren: Offener Wettbewerb
Kooperation: Gabriele G. Kiefer
Preis: 1. Preis
Jahr: 05/ 2011
Größe: 90.000 m2
Auslober: Bundesamt für Bauwesen und Raumordnung
Die Parklandschaft Gatow befindet sich im Spannungsfeld von Stadt und Land, von städtischer Peripherie und Landwirtschaft, von Kultur und Natur. Die unterschiedlichen Nutzungsansprüche von Wohnen, Erholung, Wirtschaft, Landwirtschaft und Naturschutz spiegeln sich auch in unterschiedlichen Landschaftsbildern wieder, die sich zu neuartigen Ansichten zusammenfügen. Aufgrund der begrenzten wirtschaftlichen Mittel und der stark abgestuften Nutzungsintensität in der Peripherie setzen wir auf ein pragmatisches Konzept, das mit den bestehenden Strukturen arbeitet, vorhandene Qualitäten stärkt und sie hinsichtlich einer höheren funktionalen, ökologischen und ästhetischen Vielfalt behutsam ergänzt und bereichert.










